New Construction Move-In Ready Call Us For Details



Sold
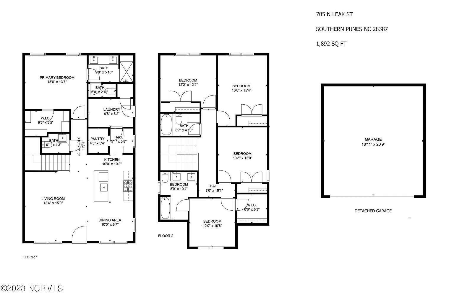
705 N Leak Street, Southern Pines, NC 28387
BRAND NEW CONSTRUCTION WITHIN WALKING DISTANCE TO DOWNTOWN SOUTHERN PINES!!! 3 blocks to Broad Street. This charming cottage style home is full of surprises!! There are 5 bedrooms and 3 full baths and one half bath. Hardwood flooring runs throughout the first floor. Granite countertops in the kitchen, Tile walk in shower and tile in laundry and bathrooms. The outdoor fire-pit and sitting area will surely be a popular gathering spot. Natural Gas will power the tankless water heater, the range and the heat pump. Bring your marshmellows – firepit out back is the perfect spot to gather with friends. Front porch is for aesthetics only. Setbacks prohibited a larger usable porch but there is plenty of front yard to play in! Photos with furniture are virtually staged.
- Price: $575,000
- Beds: 5
- Baths: 4
- Sqft: 1,959
- Square Feet Lot: 10,018.8
- Price/Sqft: $294
- Year Built: 2022
- Type: Single Family
- Region: Southern Pines
- County: Moore
- Status: Sold
Photo Gallery





























































Listing Video
Matterport Style 3D Tour
Get In Touch With Us